228 м2
Материал стен6
2
18 643 000 р.
Цена с монтажом19 691 800 р.
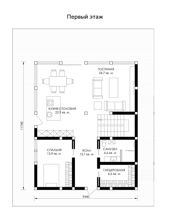
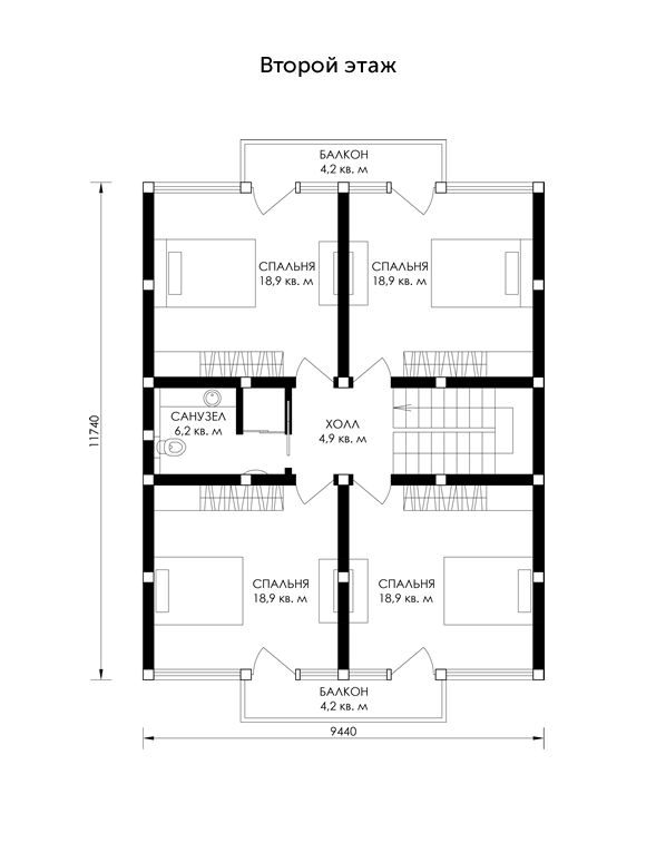
Представляем Вам самый просторный проект из коллекции Фахверк. Сразу приковывает взгляд фасад с панорамным остеклением. Благодаря этому решению все помещения дома всегда наполнены дневным светом и дом буквально сияет изнутри. Помимо чарующего внешнего вида, этот дом порадует вас рациональной планировкой. На первом этаже находятся гостиная, кухня-столовая, спальня или кабинет, сауна и хозяйственные помещения, а на втором расположились четыре спальни и два симметричных широких балкона для вашего отдыха тихими летними вечерами.


Это совсем просто! В нашей компании работает штат опытных архитекторов, которые на основании ваших идей создадутиндивидуальные планировки, внесут корректировки в фасад. Архитектор может встретиться с вами, как в одном из наших офисов, так и в любом другом удобном для вас месте, в том числе на участке.
Простота форм – коробка в виде вытянутого прямоугольника, двускатная крыша, минималные свесы. Жесткий каркас из опорных клееных балок. Второй свет на всей протяженности или в одной из торцевых частей. Панорамное остекление, максимум свободного пространств.
Особенность конструктивных элементов домов-амбаров – это каркас из клееных балок, из заполнение специальными панелями.
Современные утеплители и специальные стеклопакеты делают дом действительно энергоэффективным. Несмотря на сравнительно небольшую толщину стен, фахверковые дома в разы теплее кирпичных. Кроме того, за счет уменьшения толщины стен полезная площадь дома увеличивается примерно на 10%.
Технологичный клееный конструкционный брус и утеплители являются максимально влагостойкими материалами. Под действием внешней среды они не будут деформироваться, а значит дом с течением времени сохранит точную геометрию формы. Продувания, промерзания и прочие негативные явления исключены.
При изготовлении клееных деревянных конструкций мы используем клеевые системы всемирно известного прозводителя AkzoNobel (Швеция). Клеевые составы абсолютно безопасны для здоровья, что подтверждают испытания независимых центров и соответствующие сертификаты. Утеплители PIR также не выделяют вредных веществ — сегодня это самый экологичный и безопасный теплоизоляционный материал.
Несущие клееные деревянные конструкции гораздо безопаснее бетонных или металлических. Распространение огня сдерживается в течение 30 и более минут. Утеплители в панелях под действием огня лишь обугливаются — не плавятся, образуя горящие капли расплава, и не поддерживают распространение пламени.
Монтаж домокомплекта относительно прост и не требует больших временных затрат, все работы занимают порядка 10-14 дней. Вы можете заказать сборку дома в нашей компании или осуществить монтаж своими силами. Приобретая домокомплект, вы получите необходимый комплект чертежей и инструкций.
Благодаря стандартизации деталей и массовости производства мы предлагаем действительно качественные современные дома по меньшей стоимости.
Никогда не поздно найти более интересные условия и избежать уловок строителей!
Мы сделаем бесплатный аудит сметы и укажем на возможные «подводные камни»